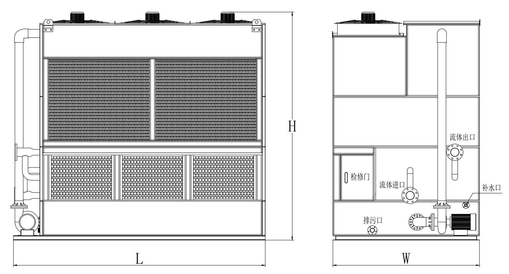
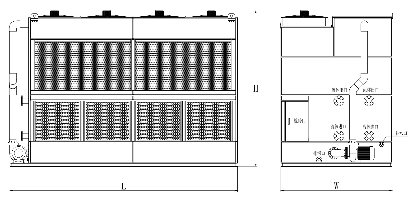
閉式冷卻塔利用水蒸發時吸收熱量的原理使被冷卻液體冷卻。噴淋水存于冷卻塔底部集水盆,工作流體在閉式冷卻塔的散熱盤管內進行封閉循環。噴淋水由噴淋泵經布水系統和噴淋頭均勻地噴灑在PVC預冷填料上面,PVC熱交換層中的水被流過的空氣冷卻,溫度降低,落在散熱盤管表面,小部分水被蒸發,吸走熱量;另一部分水進入底部集水盤,再由噴淋系統分布于PVC預冷填料和散熱盤管表面,如此進行循環冷卻從而降低散熱盤管內流經的工作液體的溫度。


閉式冷卻塔利用水蒸發時吸收熱量的原理使被冷卻液體冷卻。噴淋水存于冷卻塔底部集水盆,工作流體在閉式冷卻塔的散熱盤管內進行封閉循環。噴淋水由噴淋泵經布水系統和噴淋頭均勻地噴灑在PVC預冷填料上面,PVC熱交換層中的水被流過的空氣冷卻,溫度降低,落在散熱盤管表面,小部分水被蒸發,吸走熱量;另一部分水進入底部集水盤,再由噴淋系統分布于PVC預冷填料和散熱盤管表面,如此進行循環冷卻從而降低散熱盤管內流經的工作液體的溫度。

一、 閉式冷卻塔的優勢:
1.閉式冷卻塔的被循環冷卻介質由于是全封閉式循環冷卻,因此不存在雜物進入冷卻管路系統,從而發生管路堵塞現象,保證了介質的純凈;
2.循環水需使用軟水循環冷卻,在高溫時也絕無水垢生成,不會引起被冷卻主機系統內部結垢,提高主機的使用壽命;
3.占地面積小,可以根據需要移動,不需開挖水池,節約用水,降低能耗;
4.采用空氣冷卻、水蒸發吸熱雙重冷卻方式,冷卻效率高;
二、 NCH橫流閉式冷卻塔工作原理:
作流體(純水或其它液體)在閉式冷卻塔的盤管中循環,工作流體的熱量經過盤管散入流過盤管的水中。同時機組外的空氣從側面上的進風格柵進入,與水的流動方向垂直,橫向流經盤管一小部分水蒸發而吸走熱量,熱濕空氣由冷卻塔頂部的排風機排到大氣中。其余的水則落入底部水槽中,由水泵再循環至水分布系統經過預冷填料又淋回到盤管上。

三、詳情圖

| 橫流閉式冷卻塔參數表 | ||||||||||||
| 型號 | 風機 | 噴淋泵 | 設備接口管徑 | 外形尺寸 | 重量 | |||||||
| 電機功率(kw) | 風量(m3/S) | 電機功率(kw) | 水量m3/h | 進/出水 | 排污 | 補水 | 長(L) | 寬(W) | 高(H) | 自重 kg | 運行重kg | |
| NCH-115D | 1.1×2 | 4.4×2 | 1.5 | 45 | DN65 | DN40 | DN25 | 2650 | 1950 | 2600 | 950 | 2100 |
| NCH-175D | 1.1×2 | 4.4×2 | 1.5 | 45 | DN80 | DN40 | DN25 | 2950 | 1950 | 2600 | 1050 | 2500 |

| 橫流閉式冷卻塔參數表 | ||||||||||||
| 型號 | 風機 | 噴淋泵 | 設備接口管徑 | 外形尺寸 | 重量 | |||||||
| 電機功率(kw) | 風量(m3/S) | 電機功率(kw) | 水量m3/h | 進/出水 | 排污 | 補水 | 長(L) | 寬(W) | 高(H) | 自重 kg | 運行重kg | |
| NCH-230D | 1.1×3 | 4.4×3 | 2.2 | 60 | DN80 | DN40 | DN25 | 3400 | 1950 | 2870 | 1250 | 3000 |
| NCH-290D | 1.1×3 | 4.4×3 | 2.2 | 60 | DN100 | DN40 | DN25 | 3400 | 1950 | 2980 | 1400 | 3200 |
| NCH-375D | 1.5×3 | 6.0×3 | 2.2 | 80 | DN100 | DN50 | DN32 | 3400 | 2250 | 3200 | 1600 | 3700 |

| 橫流閉式冷卻塔參數表 | ||||||||||||
| 型號 | 風機 | 噴淋泵 | 設備接口管徑 | 外形尺寸 | 重量 | |||||||
| 電機功率(kw) | 風量(m3/S) | 電機功率(kw) | 水量m3/h | 進/出水 | 排污 | 補水 | 長(L) | 寬(W) | 高(H) | 自重 kg | 運行重kg | |
| NCH-465D | 1.5×4 | 6.0×4 | 3.0 | 130 | DN125 | DN50 | DN32 | 4200 | 2250 | 3200 | 1900 | 4600 |
| NCH-580D | 1.5×4 | 6.0×4 | 3.0 | 130 | DN125 | DN50 | DN32 | 4400 | 2250 | 3300 | 2200 | 5300 |
| NCH-725D | 1.5×4 | 6.6×4 | 4.0 | 170 | DN100×2 | DN50 | DN40 | 4900 | 2400 | 3370 | 2700 | 6500 |
| NCH-870D | 2.2×4 | 7.7×4 | 4.0 | 170 | DN100×2 | DN50 | DN40 | 5400 | 2400 | 3370 | 3200 | 7400 |
| NCH-1015D | 2.2×4 | 7.7×4 | 4.0 | 170 | DN125×2 | DN65 | DN40 | 5400 | 2400 | 3370 | 3800 | 9000 |

| 橫流閉式冷卻塔參數表 | ||||||||||||
| 型號 | 風機 | 噴淋泵 | 設備接口管徑 | 外形尺寸 | 重量 | |||||||
| 電機功率(kw) | 風量(m3/S) | 電機功率(kw) | 水量m3/h | 進/出水 | 排污 | 補水 | 長(L) | 寬(W) | 高(H) | 自重 kg | 運行重kg | |
| NCH-1160D | 3×4 | 13.8×4 | 5.5 | 230 | DN125×2 | DN65 | DN40 | 6000 | 2700 | 3840 | 4500 | 10000 |
| NCH-1300D | 4×4 | 16×4 | 7.5 | 280 | DN150×2 | DN65 | DN40 | 6000 | 3000 | 3840 | 5000 | 11000 |
| NCH-1450D | 4×4 | 16×4 | 7.5 | 280 | DN150×2 | DN65 | DN40 | 6300 | 3000 | 3840 | 5500 | 12000 |
| NCH-1600D | 4×4 | 16×5 | 7.5 | 280 | DN150×2 | DN65 | DN40 | 6500 | 3000 | 3840 | 5800 | 13200 |
| NCH-1740D | 4×4 | 16×6 | 7.5 | 280 | DN150×2 | DN65 | DN40 | 6800 | 3000 | 3840 | 6050 | 14000 |
| 設計工況: | ||||
| 進水溫度 | 出水溫度 | 濕球溫度 | 干球溫度 | 大氣壓強 |
| 37℃ | 32℃ | 28℃ | 31.5℃ | 9.94×10? |
由于技術持續升級,我司保留對參數和外觀的修改權利;
以上內容供選型參考,詳情請聯系我司業務部!